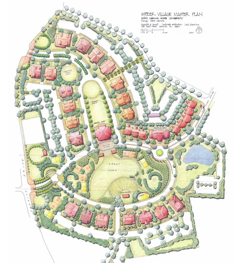
Soon after the Eta Kappa chapter was chartered in 2002, North Carolina State University began plans to revitalize Greek Village- tearing down old, outdated home and giving its fraternities and sororities the opportunity to build their own homes on this land.
The Eta Kappa Chapter of Delta Gamma was lucky to secure a beautiful lot at the corner of Greek Village Drive and Leadership Drive (lot #4) in Phase One of the project. And through the tenacity of Eta Kappa champions and a vigorous Capital Campaign, which began in 2007, we were able to break ground on our new home on June 1, 2015. Sixteen and a half months later, Eta Kappa finally had a place to call “home.”

Since then, 2300 has provided our undergraduate sisters a beautiful place to live, gather, and create lasting memories while they are studying at NC State.






